Акция
Артикул:
Guangli GL2 (ГАЗ)
Окрасочно-сушильная камера Guangli GL2 (ГАЗ) (200 кВт) предназначена для окраски легковых автомобилей и коммерческого транспорта.
Окрасочно-сушильная камера Guangli GL2 (Металлическое основание со 100% полнорешетчатым полом, нагрузка на две полосы решеток до 600кг на отпечаток колеса)
Камера для окраски легкового и коммерческого транспорта:
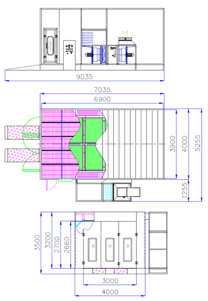
Внешние габариты: длина-7,0 м; ширина-5,3 м; высота-3,5 м.
Внутренние габариты: длина-6,9 м ширина-3,9 м; высота-2,7 м.
Размер ворот: ШхВ: ширина-3000 высота-2635 мм
В комплекте:
Итальянская газовая горелка Riello FS20: мощность 200 кВт.
Приточный вентилятор: мощностью 5.5 кВт. 18 000 м³/ч.
Вытяжной вентилятор: мощностью 4 кВт. 15 000 м³/ч.
Теплообменник: из жаростойкой нержавеющей стали.
Освещение:
Верхнее: 8 плафонов по 3 лампы, каждая 18 Вт
Боковое: 8 плафонов по 2 лампы, каждая 18 Вт
Описание:
Окрасочно-сушильная камера Guangli GL2 имеет в своей основе металлическое основание высотой 30 см. Напольные решётки выдерживает нагрузку до 600 кг на одно колесо. Камера Guangli GL2 (GAZ) комплектуется газовой горелкой Riello FS20 итальянского производства. Мощность горелки составляет 200 кВт, 90 % нагретого воздуха подвергается рециркуляции. Корпус камеры собирается из сэндвич-панелей толщиной 50 мм. В качестве наполнителя используется пенополистирол, опционально можно в качестве наполнителя использовать минеральную вату. Фронтальная дверь покрасочной камеры состоит из 3-х створок, аварийная дверь находится сбоку камеры, она оборудована замком «Антипаника».
Основные особенности:
Данная окрасочно-сушильная камера оборудована двумя вентиляторами: приточным и вытяжным. Наличие двух вентиляторов позволяет обеспечивать воздухообмен внутри камеры до 18 000 м³/ч, скорость потока воздуха внутри камеры составляет 0.20 м/с. Приточный вентилятор обладает мощностью 5.5 кВт, мощность вытяжного вентилятора составляет 4,0 кВт. 15000 м3/ч. Заслонка, переключающая режимы окраска/сушка, срабатывает с помощью ручного привода. Система фильтров состоит из: потолочного фильтра (степень фильтрации 98 %), напольного фильтра (степень фильтрации 95 %) и фильтра предварительной очистки (степень фильтрации 80 %). Потолочный фильтр состоит из 4-х кассет, которые монтируются под потолком, выполненной из стали. Напольный фильтр укладывается под напольными решетками.
Управление:
Блок управления и его компоненты импортного производства, они защищены от перегрузки, перегрева и пропадания фазы, мотор с линейным приводом. При истечении заданных значений времени, работа камеры автоматически прекращается. Покраска происходит при постоянной температуре. Питание камеры осуществляется посредством трёхфазной сети с напряжением 380 В
Сэндвич-панель, наполненная пенополистиролом, толщина 50 мм
Основание:
Металлическое основание камеры и группы притока высотой 30 см
Габаритные размеры:
Наружные размеры: Длина — 7 м, ширина — 5.3 м, высота — 3.5 м
Внутренние размеры: Длина — 6.9 м, ширина — 3.9 м, высота — 2.7 м
Входы:
Главная дверь: Трехстворчатая, ширина — 3 м, высота — 2.7 м
Аварийная дверь: Ширина — 0.8 м, высота — 2 м
Освещение:
Верхнее освещение — 8 плафонов по 3 лампы, каждая 18 Вт
Боковое освещение — по 2 лампы, каждая 18 Вт
Воздухообмен:
приточный 1 х 5.5 кВт, воздухообменом 18000 м3/ч
вытяжной 1 х 4.0 кВт, воздухообменом 15000 м3/ч
Вентиляционные агрегаты:
Вытяжной вентилятор мощностью 5.5 кВт
Вытяжной вентилятор мощностью 4 кВт
Температурные режимы:
Газовая горелка Riello FS20, тепловая мощность 200 кВт. Рециркуляция — 90% теплого воздуха Температура: цикл покраски — 20°С при -3°С, цикл сушки — 60°/80°С
Фильтрация:
Система фильтров: Фильтр предварительной очистки: степень фильтрации — 80% Потолочный фильтр: степень фильтрации — 98% Напольный фильтр: степень фильтрации — 95%
Решетки напольные:
Со 100% полнорешётчатым полом, нагрузка на две полосы решёток. До 600 кг на отпечаток колеса.
Питание:
Электрическая трехфазная сеть напряжением 380 В, 11 кВт — 26 А
Соответствия и стандарты:
Оборудование соответствует требованиям ТР ТС 004/2011 О безопасности низковольтного оборудования, ТР ТС 010/2011 О безопасности машин и оборудования, ТР ТС 020/2011 Электромагнитная совместимость технических средств, а также ГОСТ Р МЭК 60204-1-2007, ГОСТ 30804.6.2-2013, ГОСТ 30804.6.4-2013, ГОСТ 12.2.003-91, ГОСТ 15150-69. Оборудование максимально адаптировано для работы в Российских условиях. Имеет ряд защитных устройств для предотвращения аварийных ситуаций, связанных с нестабильностью сетей.
Габаритные размеры Guangli GL2



Принцип работы камеры в разных режимах:

Схема размещения ОСК в транспорте:
Окрасочно-сушильная камера Guangli GL2 (Металлическое основание со 100% полнорешетчатым полом, нагрузка на две полосы решеток до 600кг на отпечаток колеса)
Камера для окраски легкового и коммерческого транспорта:
Внешние габариты: длина-7,0 м; ширина-5,3 м; высота-3,5 м.
Внутренние габариты: длина-6,9 м ширина-3,9 м; высота-2,7 м.
Размер ворот: ШхВ: ширина-3000 высота-2635 мм
В комплекте:
Итальянская газовая горелка Riello FS20: мощность 200 кВт.
Приточный вентилятор: мощностью 5.5 кВт. 18 000 м³/ч.
Вытяжной вентилятор: мощностью 4 кВт. 15 000 м³/ч.
Теплообменник: из жаростойкой нержавеющей стали.
Освещение:
Верхнее: 8 плафонов по 3 лампы, каждая 18 Вт
Боковое: 8 плафонов по 2 лампы, каждая 18 Вт
Описание:
Окрасочно-сушильная камера Guangli GL2 имеет в своей основе металлическое основание высотой 30 см. Напольные решётки выдерживает нагрузку до 600 кг на одно колесо. Камера Guangli GL2 (GAZ) комплектуется газовой горелкой Riello FS20 итальянского производства. Мощность горелки составляет 200 кВт, 90 % нагретого воздуха подвергается рециркуляции. Корпус камеры собирается из сэндвич-панелей толщиной 50 мм. В качестве наполнителя используется пенополистирол, опционально можно в качестве наполнителя использовать минеральную вату. Фронтальная дверь покрасочной камеры состоит из 3-х створок, аварийная дверь находится сбоку камеры, она оборудована замком «Антипаника».
Основные особенности:
Данная окрасочно-сушильная камера оборудована двумя вентиляторами: приточным и вытяжным. Наличие двух вентиляторов позволяет обеспечивать воздухообмен внутри камеры до 18 000 м³/ч, скорость потока воздуха внутри камеры составляет 0.20 м/с. Приточный вентилятор обладает мощностью 5.5 кВт, мощность вытяжного вентилятора составляет 4,0 кВт. 15000 м3/ч. Заслонка, переключающая режимы окраска/сушка, срабатывает с помощью ручного привода. Система фильтров состоит из: потолочного фильтра (степень фильтрации 98 %), напольного фильтра (степень фильтрации 95 %) и фильтра предварительной очистки (степень фильтрации 80 %). Потолочный фильтр состоит из 4-х кассет, которые монтируются под потолком, выполненной из стали. Напольный фильтр укладывается под напольными решетками.
Управление:
Блок управления и его компоненты импортного производства, они защищены от перегрузки, перегрева и пропадания фазы, мотор с линейным приводом. При истечении заданных значений времени, работа камеры автоматически прекращается. Покраска происходит при постоянной температуре. Питание камеры осуществляется посредством трёхфазной сети с напряжением 380 В
Технические характеристики Guangli GL2 (GAZ)
Стены:Сэндвич-панель, наполненная пенополистиролом, толщина 50 мм
Основание:
Металлическое основание камеры и группы притока высотой 30 см
Габаритные размеры:
Наружные размеры: Длина — 7 м, ширина — 5.3 м, высота — 3.5 м
Внутренние размеры: Длина — 6.9 м, ширина — 3.9 м, высота — 2.7 м
Входы:
Главная дверь: Трехстворчатая, ширина — 3 м, высота — 2.7 м
Аварийная дверь: Ширина — 0.8 м, высота — 2 м
Освещение:
Верхнее освещение — 8 плафонов по 3 лампы, каждая 18 Вт
Боковое освещение — по 2 лампы, каждая 18 Вт
Воздухообмен:
приточный 1 х 5.5 кВт, воздухообменом 18000 м3/ч
вытяжной 1 х 4.0 кВт, воздухообменом 15000 м3/ч
Вентиляционные агрегаты:
Вытяжной вентилятор мощностью 5.5 кВт
Вытяжной вентилятор мощностью 4 кВт
Температурные режимы:
Газовая горелка Riello FS20, тепловая мощность 200 кВт. Рециркуляция — 90% теплого воздуха Температура: цикл покраски — 20°С при -3°С, цикл сушки — 60°/80°С
Фильтрация:
Система фильтров: Фильтр предварительной очистки: степень фильтрации — 80% Потолочный фильтр: степень фильтрации — 98% Напольный фильтр: степень фильтрации — 95%
Решетки напольные:
Со 100% полнорешётчатым полом, нагрузка на две полосы решёток. До 600 кг на отпечаток колеса.
Питание:
Электрическая трехфазная сеть напряжением 380 В, 11 кВт — 26 А
Соответствия и стандарты:
Оборудование соответствует требованиям ТР ТС 004/2011 О безопасности низковольтного оборудования, ТР ТС 010/2011 О безопасности машин и оборудования, ТР ТС 020/2011 Электромагнитная совместимость технических средств, а также ГОСТ Р МЭК 60204-1-2007, ГОСТ 30804.6.2-2013, ГОСТ 30804.6.4-2013, ГОСТ 12.2.003-91, ГОСТ 15150-69. Оборудование максимально адаптировано для работы в Российских условиях. Имеет ряд защитных устройств для предотвращения аварийных ситуаций, связанных с нестабильностью сетей.
Габаритные размеры Guangli GL2



Принцип работы камеры в разных режимах:

Схема размещения ОСК в транспорте:
Документы
Газовая горелка
406,9 кб
Газовые мультиблоки
273,8 кб
Чертеж GL2 агрегат справа
397,2 кб
Электрическая схема
46,3 кб
Схема погрузки
72,8 кб
Опросный лист по ОСК
126,5 кб
|
Страна производства
|
КНР |
|
Бренд
|
Guangli (Китай) |
|
Мощность, кВт
|
200 кВт (5,5+4) |
|
Напряжение питания
|
380 |
|
Грузоподъемность
|
2400 |
|
Горелка
|
газовая |
|
Внешние габариты (ДхШхВ), м
|
7х5,3х3,5 |
|
Внутренние габариты (ДхШхВ), м
|
6,9х3,9х2,7 |
|
Размер ворот, (ШхВ), м
|
3х2,6 |
|
Приточный вентилятор мощностью, кВт / м³/ч.
|
5,5 / 18 000 |
|
Вытяжной вентилятор мощностью , кВт / м³/ч.
|
4 / 15 000 |
|
Напряжение, мощность, В / кВт
|
380 / 11 |
|
Аварийная дверь, (ШхВ), м
|
0,8х2 |
Отзывы
Оставить отзыв
Загрузка отзывов...
Вы можете воспользоваться одним из следующих вариантов оплаты:
- Оплата наличными. Мы принимаем наличные деньги (только рубли) через кассовый фискальный аппарат.
- Безналичный расчет для юридических и частных лиц.
- Оплата банковской картой. Оплата происходит через ПАО СБЕРБАНК с использованием Банковских карт следующих платежных систем: VISA, VISA Electron, Maestro, MasterCard, МИР
Товар можно получить одним из следующих способов:
- Самовывоз товара с пункта выдачи по адресу в вашем городе.
- Курьерская доставка с 9-00 до 23-00 по рабочим дням. Покупатель обязуется разгрузить оборудование собственными силами и в кратчайшие сроки. Простой автомобиля оплачивается отдельно.
- Доставка одной из следующих транспортных компаний: "ПЭК" (Первая Экспедиционная Компания), "ЖДЭ" (ЖелДорЭкспедиция), "ЭНЕРГИЯ", "ДЕЛОВЫЕ ЛИНИИ", "СДЭК" и другие.

